Providing a wide range of water & civil engineering services
Conducting investigations and designs of distribution pipelines, controls, civil designs and project management

Hills Consulting provide comprehensive WSC services to developers, builders & property owners with:
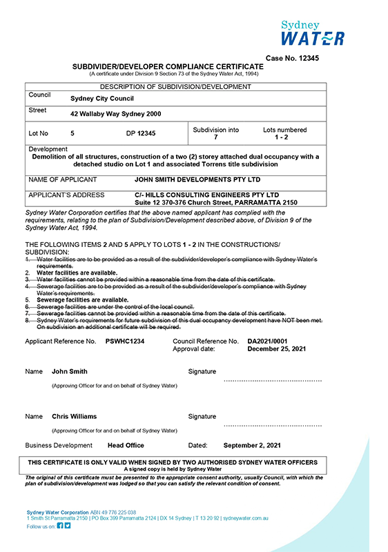
Section 73 certificates are required for:
Hills Consulting provide comprehensive Section 73 services: Commencing S73 notice of requirements and implementation consisting hydraulic design, project brief & engineer's estimate, engagement of constructors through a procurement process, supervision of construction, asset handover and developer entitlement claims.


Developers, builders and renovators can directly use Sydney Water's "tap-in" online system to determine Sydney Water's requirements and obtain the building plan approval.
If your application through "tap-in" requires 'further assessment', Hills consulting , as WSC's, are able to:
Our dedicated team are experienced in their individual fields and pride themselves on building enduring relationships with their clients.
